Szukasz idealnego balansu między nadmorskim klimatem a nowoczesnym komfortem? Mam przyjemność zaprezentować wyjątkową ofertę w najbardziej pożądanej części Ustki. To nie jest zwykłe mieszkanie – to przestrzeń zaprojektowana dla tych, którzy od życia wymagają więcej.
Inwestycja STOKOR VIP u zbiegu ulic Kolorowej i Polnej to synonim kameralności. Położone w otulinie zieleni osiedle gwarantuje spokój, którego brakuje w ścisłym centrum kurortu, zachowując jednocześnie pełną infrastrukturę na wyciągnięcie ręki.
Codzienność bez kompromisów: Szkoły, przedszkola i sklepy w bezpośrednim sąsiedztwie.
Komfort dojazdu: Nowoczesna droga z polbruku i eleganckie podejścia z kostki granitowej.
Relaks: Bliskość terenów rekreacyjnych sprzyjających aktywnemu wypoczynkowi.
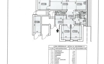
Lokal o imponującej powierzchni 105,31 m² zlokalizowany na parterze to doskonała alternatywa dla domu jednorodzinnego.
Metraż: 105,31 m² (przestronne, ustawne wnętrza).
Stan: Deweloperski – czysta karta dla Twojej wyobraźni (możliwość zlecenia wykończenia pod klucz).
Ogród: Do mieszkania przynależy prywatny ogród – idealne miejsce na poranną kawę czy wieczorny grill z przyjaciółmi.
Parking: W cenie otrzymujesz dwa miejsca postojowe przypisane do lokalu.
Budynek został wzniesiony z użyciem wyselekcjonowanych materiałów, co przekłada się na niskie koszty eksploatacji i trwałość na lata:
Ciepło i oszczędność: Ogrzewanie podłogowe zasilane gazem z sieci miejskiej (markowe piece kondensacyjne dwufunkcyjne).
Izolacja akustyczna i termiczna: Okna PCV trzyszybowe oraz solidne, aluminiowe drzwi zewnętrzne.
Solidność: Dachówka ceramiczna oraz konstrukcja dachu z wysokiej klasy drewna.
Udogodnienia: Dodatkowe ujęcie wody na zewnątrz do pielęgnacji Twojego ogrodu.
Cena: 849 000 PLN
UNIKALNA OKAZJA: Właściciel dopuszcza możliwość pozostawienia w rozliczeniu innej nieruchomości (mieszkanie w Ustce lub innym mieście). To idealne rozwiązanie, jeśli chcesz zamienić mniejsze lokum na luksusowy apartament bez zbędnego stresu związanego ze sprzedażą na wolnym rynku.
Zapraszam na prezentację! Nie czekaj, aż ktoś inny spełni Twoje marzenia o luksusie nad morzem. Takie metraże w tej lokalizacji to rzadkość.
Zadzwoń i umów się na spotkanie – klucze do Twojej przyszłości są w moich rękach.



